Bridge Design Projects

Professional work as a civil engineering intern at Michael Baker International, 2019

To be successful, civil engineering projects require collaboration among many parties. While designing bridges, Michael Baker works with clients to meet specifications, government agencies for permitting, approval, and code compliance, and general contractors to ensure constructability. During this internship, I worked on three bridge design projects, each with different needs and stakeholders.

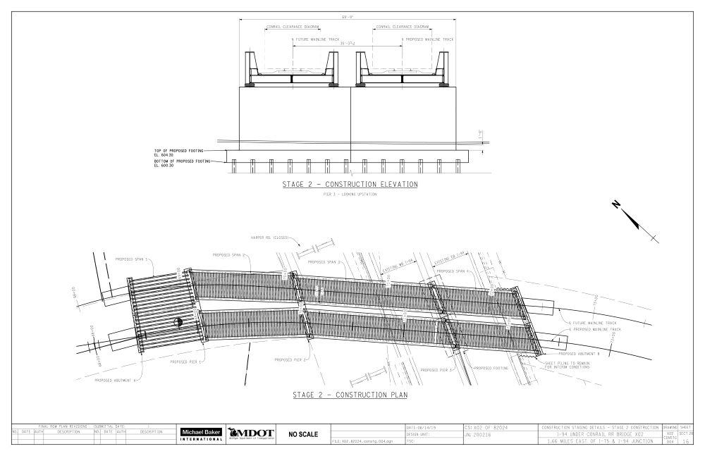
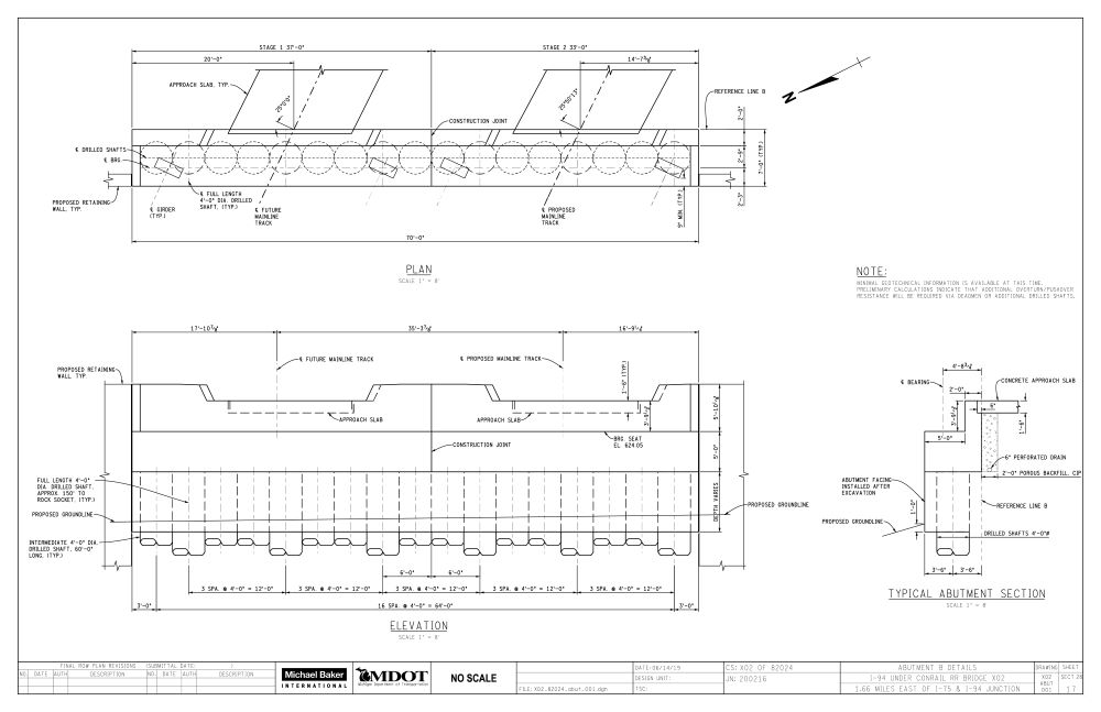
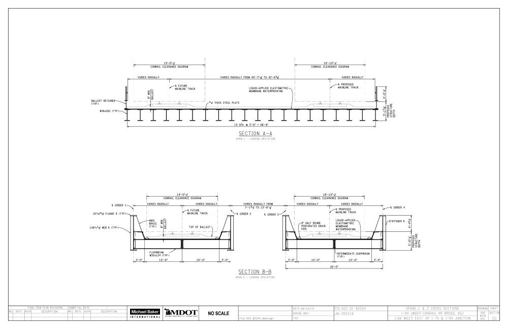
The first project was a railroad bridge over an interstate highway, whose stakeholders included the Michigan Department of Transportation and CSX Transportation (the railroad company). My role was to draft type, size, and location (TS&L) drawings in MicroStation showing the foundation system, bridge structure, and construction staging.

Drainage configurations created in AutoCAD based on TS&L drawings. My role was to map drainage areas and draft drainage plans.

The second project was a low traffic bridge on private commercial property, requiring collaboration with the landowners, city, and general contractor. My role for this project was to calculate drainage requirements and draft drainage configurations in AutoCAD based on TS&L drawings.

The third project was the replacement of several roadway bridges over creeks. Construction of this project was going to require shutting down sections of road, and therefore the public needed to be informed. My role was to create outreach maps to communicate impacts of the construction project.